.jpg)
3930 Mount Zion Road, Decatur, IL
$262,500
Active
3 Beds
2 Baths
1,946 SqFt
4.20 Acres
2 Car Garage
About 3930 Mount Zion Road
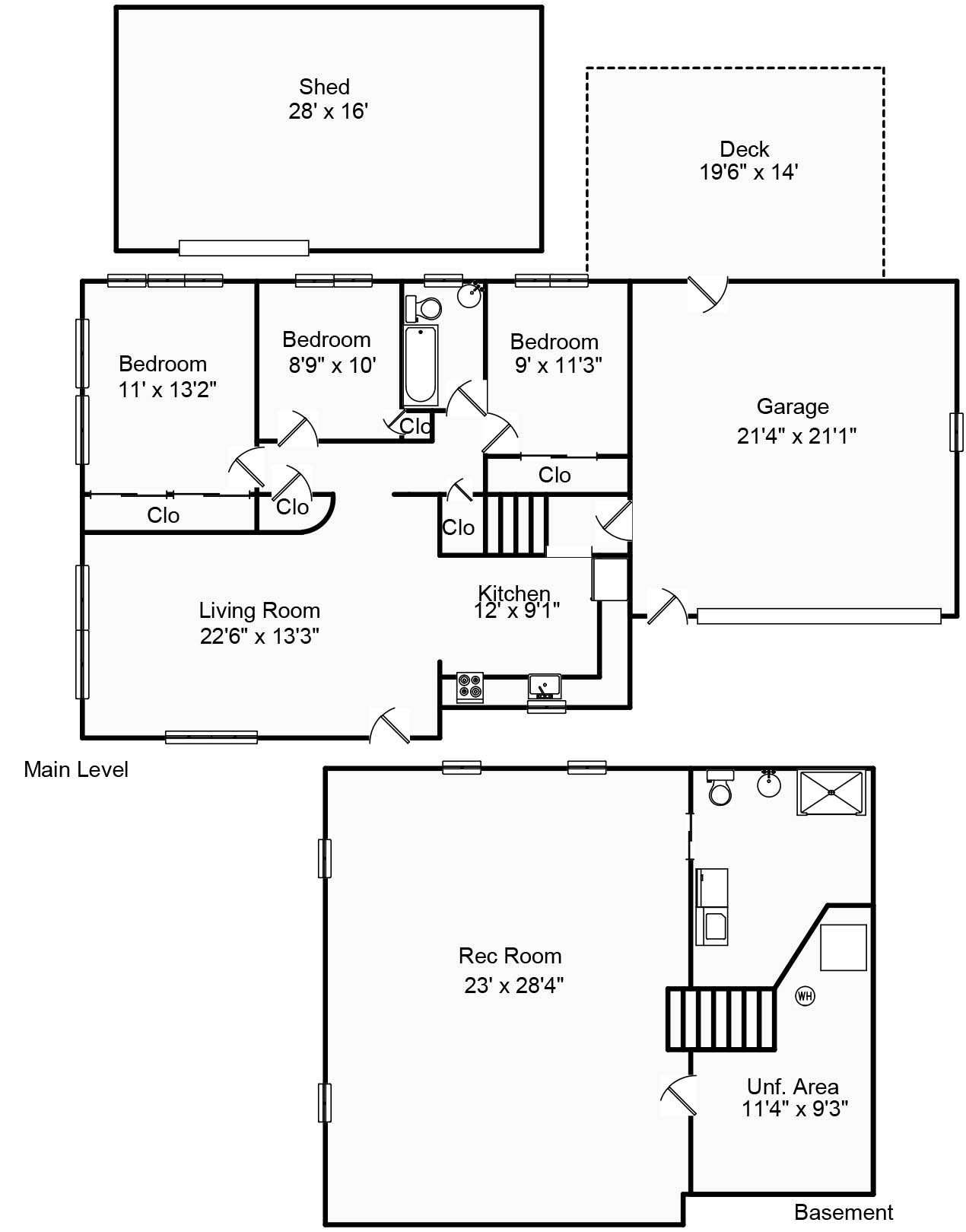
This stunning remodeled ranch offers the perfect blend of modern updates and charm. Sitting on a spacious 4.2-acre lot, this home has been thoughtfully updated throughout with brand-new flooring, fresh paint, and stylish finishes that make it truly move-in ready. The inviting main level features a bright and open floor plan, highlighted by a fully updated kitchen complete with new appliances, countertops, and cabinets. The fully finished basement provides a full bathroom and even more living space—perfect for a family room, home office, gym, or game room. Step outside and enjoy the peace and privacy of your acreage, with plenty of room for outdoor activities, gardening, hunting or simply soaking in the views. Whether you’re looking for space to spread out or a beautifully updated home to enjoy, this property checks every box.
Facts & Features
MLS® # | 6255444 |
---|---|
Price | $262,500 |
Cost Per Square Foot | $135 |
Bedrooms | 3 |
Bathrooms | 2.00 |
Full Baths | 2 |
Total Finished Square Feet | 1,946 |
Total Finished Above Grade | 1,056 |
Main | 1,056 |
Basement Total | 1,056 |
Basement Finished | 890 |
Basement Unfinished | 166 |
Acres | 4.20 |
Year Built | 1958 |
Type | Single Family |
Sub-Type | Single Family Residence |
Style | Ranch |
Status | Active |
Taxes | $1,616 |
Tax Year | 2024 |
Community Information
Address | 3930 Mount Zion Road |
---|---|
Subdivision | Orrs 1st Add |
City | Decatur |
County | Macon |
State | IL |
Zip Code | 62521 |
Amenities
Parking | Attached, Garage |
---|---|
# of Garage Spaces | 2 |
Is Waterfront | No |
Has Pool | No |
Interior
Appliances | Dishwasher, Gas Water Heater, Microwave, Oven, Refrigerator |
---|---|
Heating | Forced Air |
Cooling | Central Air |
Has Basement | Yes |
Basement | Finished, Full |
Fireplace | No |
# of Stories | 1 |
Stories | One |
Exterior
Exterior Features | Deck, Shed, Workshop |
---|---|
Roof | Shingle |
Construction | Wood Siding |
Foundation | Basement |
School Information
District | Mt Zion Dist 3 |
---|
Additional Information
Date Listed | October 14th, 2025 |
---|---|
Days on Market | 1 |
Zoning | RES |
Listing Details
Agent | Tony Piraino |
---|---|
Office | Brinkoetter REALTORS® |