Loading floorplan...
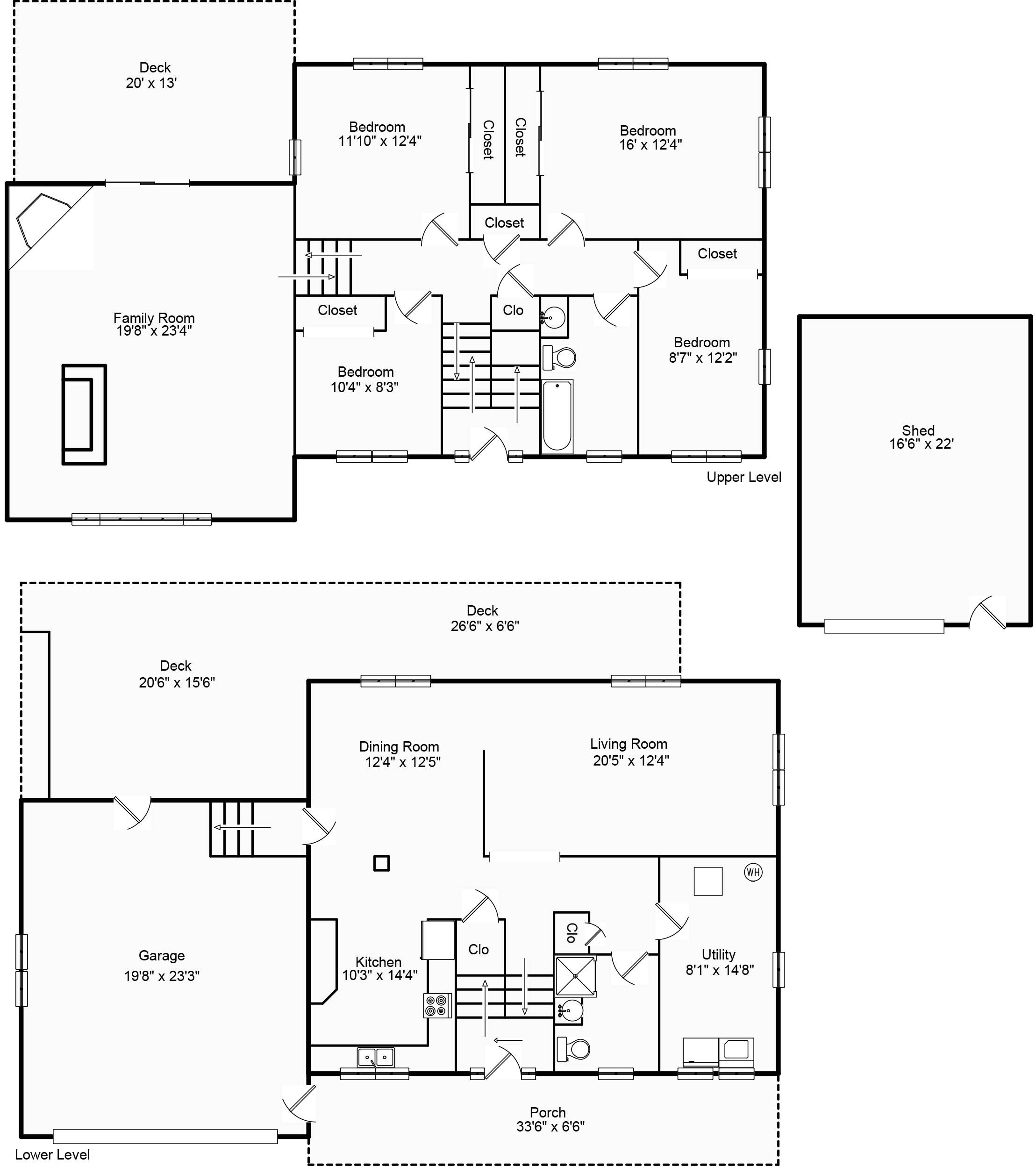
4074 Sheffield Court, Decatur, IL Floorplan
  • 1024w

4074 Sheffield Court, Decatur, IL

$220,000

Active - Under Contract

4 Beds

2 Baths

2,368 SqFt

0.25 Acres

2 Car Garage

About 4074 Sheffield Court

Welcome to this spacious and well-maintained 4-bedroom, 2-bathroom trilevel home, perfectly situated at the end of a peaceful cul-de-sac. Step inside to find fresh paint throughout the home, creating a bright and inviting atmosphere. The updated kitchen shines with brand-new appliances (2025) and freshly painted cabinets (Sept. 2025), making it a perfect space for cooking and entertaining. Enjoy year-round comfort with a new HVAC system (2024) and peace of mind thanks to a new roof and gutters (2025). OPEN HOUSE: 10/12/25 2pm-4pm. Open house will be cancelled if seller accepts an offer before. Additional highlights include: Washer and dryer (2024) Newly redone front porch (2024) perfect for relaxing Beautiful new landscaping Fenced backyard ideal for pets, play, or gardening 1.5-car detached garage currently set up as a gym – easily customizable to your needs Bonus shed for extra storage Don’t miss this move-in ready home with modern updates and a fantastic location!!

Facts & Features

MLS® # 6255387
Price $220,000
Cost Per Square Foot $93
Bedrooms 4
Bathrooms 2.00
Full Baths 2
Total Finished Square Feet 2,368
Total Finished Above Grade 1,430
Upper 1 1,430
Lower 938
Acres 0.25
Year Built 1964
Type Single Family
Sub-Type Single Family Residence
Style Tri-Level
Status Active - Under Contract
Taxes $4,652
Tax Year 2024

Community Information

Address 4074 Sheffield Court
Subdivision Windsor Village 5th Add
City Decatur
County Macon
State IL
Zip Code 62526

Amenities

Parking Attached, Detached, Garage
# of Garage Spaces 2
Is Waterfront No
Has Pool No

Interior

Appliances Dryer, Dishwasher, Gas Water Heater, Microwave, Oven, Refrigerator, Washer
Heating Gas
Cooling Central Air
Fireplace Yes
# of Fireplaces 1
# of Stories 2
Stories Two, Multi/Split

Exterior

Roof Asphalt
Construction Vinyl Siding
Foundation Slab

School Information

District Decatur Dist 61

Additional Information

Date Listed October 6th, 2025
Days on Market 9
Zoning MUN

Listing Details

AgentTony Piraino
OfficeBrinkoetter REALTORS®

Listing Map

Request a Showing

Provide a valid email address.
When would you like to view this property?